公司地址:江苏省泰兴市城东工业园
电话:0523-80737099
传真:0523-80737073
邮箱:txeme@163.com
副总经理办公室:0523-80737099
综合办公室:0523-80737077
销售部:0523-80737090、80737091、80737092、80737093、80737094
技术部:0523-80737078、80737080、80737081、80737097、80737098
公司地址(马来西亚):
Alliance Machines Pte Ltd
50 Bukit Batok Street 23,#08-15 Midview Building Singapore 659578
Sea Horse Services Sdn Bhd
No.82 Jalan S2C3, Green Technology Park, Seremban 27000 Seremban, Negeri Sembilan, Malaysia
电话:+65 92702822
新闻主题:液压绞车原理 浏览次数:[ 390 ]

绞车的简介
液压绞车以油液作为工作介质,通过密封容积的变化来传递运动,通过油液内部的压力来传递动力。
(1)、动力部分-将原动机的机械能转换为油液的压力能(液压能),例如:液压泵。
(2)、执行部分-将液压泵输入的油液压力能转换为带动工作机构的机械能。例如:液压缸、液压马达。
(3)、控制部分-用来控制和调节油液的压力、流量和流动方向,例如:压力控制阀、流量控制阀和方向
控制阀。
(4)、辅助部分-将前面三部分连接在一起,组成一个系统,起贮油、过滤、测量和密封等作用。例如:管路和接头、油箱、过滤器、蓄能器、密封件和控制仪表等。
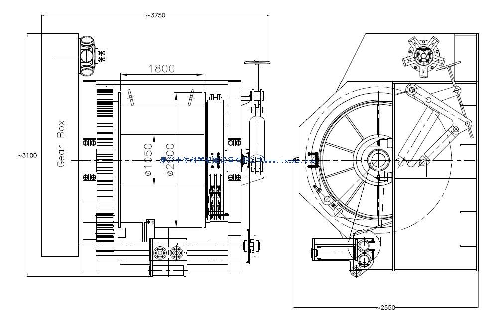
在一定体积的液体上的任意一点施加的压力,能够大小相等地向各个方向传递这意味着当使用多个液压缸时每个液压缸将按各自的速度拉或推而这些速度取决于移动负载所需的压力在液压缸承载能力范围相同的情况下承载最小载荷的液压缸会首先移动,承载最大载荷的液压缸最后移动。在起重机械中,用以提升或下降货物的机构称为起升机构,一般采用卷扬式,而这样的机器叫做卷扬机又叫绞车。卷扬机的卷扬机构一般由驱动装置、钢丝绳卷绕系统、取物装置和安全保护装置等组成。驱动装置包括电动机、联轴器、制动器、减速器、卷筒等部件。钢丝绳卷绕系统包括钢丝绳、卷筒、定滑轮和动滑轮。取物装置有吊钩、吊环、抓斗、电磁吸盘、吊具挂梁等多种形式。安全保护装置有超负载限制器、起升高度限位器、下降深度限位器、超速保护开关等,根据实际需要配用。卷扬机的驱动方式有三种,分别为内燃机驱动、电动机驱动和液压驱动。内燃机驱动的起升机构,其动力由内燃机经机械传动装置集中传给包括起升机构在内的各个工作机构,这种驱动方式的优点是具有自身独立的能源,机动灵活,适用于流动作业。为保证各机构的独立运动,整机的传动系统复杂笨重。由于内燃机不能逆转,不能带载起动,需依靠传动环节的离合实现起动和换向,这种驱动方式调速困难,操纵麻烦,属于淘汰类型。目前只有少数地方应用。电动机驱动是卷扬机的主要驱动方式。直流电动机的机械特性适合起升机构的工作要求,调速性能好,但获得直流电源较为困难。在大型的卷扬机中,常采用内燃机和直流发电机实现直流传动。交流电动机驱动能直接从电网取得电能,操纵简单,维护容易,机组重量轻,工作可靠,在电动卷扬机中应用广泛。液压驱动的卷扬机,由原动机带动液压泵,将工作油液输入执行构件(液压缸或液压马达)使机构动作,通过控制输入执行构件的液体流量实现调速。液压驱动的优点是传动比大,可以实现大范围的无级调速,结构紧凑,运转平稳,操作方便,过载保护性能好。缺点是液压传动元件的制造精度要求高,液体容易泄漏。目前液压驱动在船用卷扬机中获得日益广泛的应用.
依科攀专业设计和生产:
电动/液压起锚机(锚链直径16-110mm)
电动/液压起锚系缆绞盘(锚链直径16-48mm)
手动绞车,钢索绞车(工作负载1-10T)
电动/液压船用系泊绞车,拖缆绞车,工绞车,定位绞车,瀑布式绞车,防爆绞绞车,柴油机绞车等(工作负载0.5T-240T)
电动/液压系缆绞盘,气动绞盘(卧式绞盘,立式绞盘,10KN-300KN)
应急拖带系统(BV工厂认可),鲨鱼钳和拖缆桩(100-400T)
滚柱导缆器,万向导缆器,系缆桩